移住立国あやべ

買いたい・借りたい

空き家情報

定住サポートでは、綾部市に定住を望まれる方のために空き家の情報を提供しております。地域で探したり、価格帯で探したり、また、物件により探すことができます。

T-625
NEW

  •  
ナンバー T-625
取扱 売買
地域 山家地区
所在地 京都府綾部市広瀬町
物件種別 土地+建物(農地付き)
利用状況 2023年1月頃まで入居/管理継続中
所有者希望価格 450万円
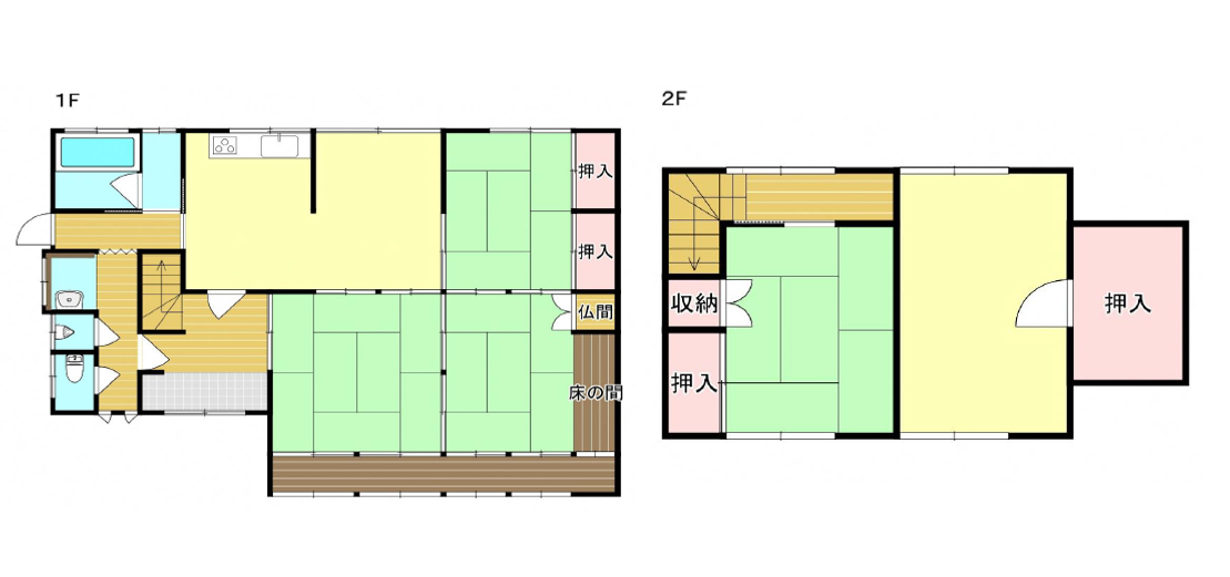
建物 木造瓦葺2階建
土地面積 244.62㎡
延べ床面積 134.71㎡
附帯物件 物置1棟、田(3,283㎡)、畑(1,000㎡)、原野(1,373㎡)、山林(2,585㎡)
設備 関西電力・プロパンガス・上水道・トイレ(浄化槽)
補修の要否 修繕必要
交通 綾部市役所まで・・・6.8km、JR綾部駅まで・・・7.7km
東綾小・中一貫校まで・・・0.9km
バス・・・あやバス上林線 山家駅前バス停より0.9km
地域区分 都市計画区域内(特定用途制限地区/田園居住地区)
その他 ●修繕費用負担/買主負担
●自治会への加入必要
●本物件は宅地建物取引事業者が売買契約の仲介を行いますので、契約の際は法定の仲介手数料が必要です。
●空き家情報のページに掲載されている物件の地図情報は、おおよその場所を示しています。
平面図 平面図

■MAP

関連キーワード