定住サポートでは、綾部市に定住を望まれる方のために空き家の情報を提供しております。地域で探したり、価格帯で探したり、また、物件により探すことができます。
| ナンバー | 上原定住支援住宅 |
|---|---|
| 取扱 | 売買 |
| 地域 | 山家地区 |
| 所在地 | 綾部市上原町 |
| 物件種別 | ---- |
| 利用状況 | ---- |
| 所有者希望価格 | 3万円/月 |
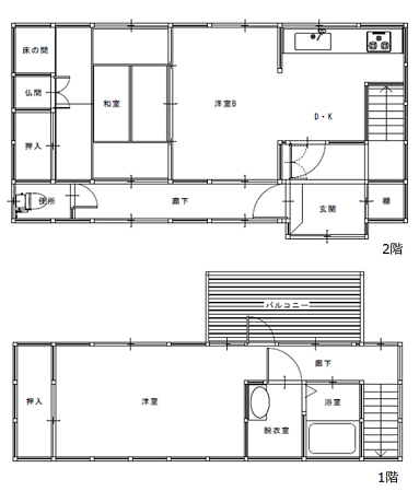
| 建物 | 木造亜鉛メッキ鋼板葺2階建 |
| 土地面積 | 122.31㎡ |
| 延べ床面積 | 78.36㎡(1階:25.32㎡/2階:53.04㎡) |
| 附帯物件 | なし |
| 設備 | 関西電力・プロパンガス・上水道・トイレ(農業集落排水) |
| 補修の要否 | 修繕不要(即入居可) |
| 交通 | 綾部市役所まで・・・6.3km、JR綾部駅まで・・・7.2km 東綾小中一貫校まで・・・0.7km バス・・・あやバス上林線 山家駅前バス停まで0.05km |
| 地域区分 | 都市計画区域内(特定用途制限地域/田園居住地区) |
| その他 | ●自治会への加入必要 ●敷金:9万円 ●本住宅は入居期限付き住宅です。入居開始は令和8年7月1日以降、入居期間は入居日から3年間です。 ●単身者の入居はできません。 ●申込時において入居者全員の年齢が60歳未満で構成される世帯であること。 ●その他入居条件を設定していますので、必ずリンク先の募集案内書をご覧ください。 【入居者募集】綾部市定住支援住宅 ●お問い合わせは綾部市定住・地域政策課「0773-42-4270」までお願いします。 |
| 平面図 | ![]() |