移住立国あやべ

買いたい・借りたい

空き家情報

定住サポートでは、綾部市に定住を望まれる方のために空き家の情報を提供しております。地域で探したり、価格帯で探したり、また、物件により探すことができます。

T-623
NEW

  •  
ナンバー T-623
取扱 売買
地域 中上林地区
所在地 京都府綾部市五津合町
物件種別 土地+建物(農地付き)
利用状況 2025年10月頃まで入居/管理継続中
所有者希望価格 350万円
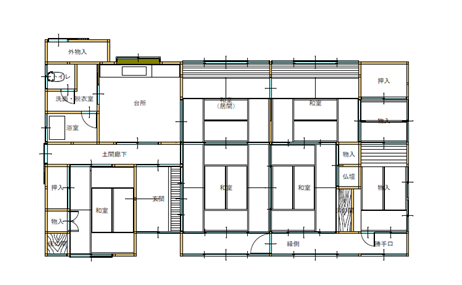
建物 木造草葺平家建
土地面積 383.47㎡
延べ床面積 77.68㎡
附帯物件 離れ1棟、蔵1棟、物置1棟、車庫2棟、宅地(13.22㎡)、田(863㎡)、畑(1,806㎡)、山林(4,276㎡)、保安林(1,472㎡)
設備 関西電力・プロパンガス・井戸水・トイレ(浄化槽)
補修の要否 修繕必要
交通 綾部市役所まで・・・19.7km JR綾部駅まで・・・20.2km
上林小中一貫校まで・・・1.6km
バス・・・あやバス於見市野線 遊里バス停より0.3km
地域区分 都市計画区域外
その他 ●自治会への加入必要
●修繕費用負担/買主負担
●本物件の敷地の一部は土砂災害警戒区域(急傾斜地の崩壊)に、敷地は土砂災害警戒区域(土石流)に指定されています。
●上水道マス引込有。※未接続
●本物件は宅地建物取引事業者が売買契約の仲介を行いますので、契約の際は法定の仲介手数料が必要です。
●空き家情報のページに掲載されている物件の地図情報は、おおよその場所を示しています。
平面図 平面図

■MAP

関連キーワード